$297,990
For more information regarding the value of a property, please contact us for a free consultation.
2318 Millard Creek DR League City, TX 77573
3 Beds
2 Baths
1,318 SqFt
Key Details
Property Type Single Family Home
Sub Type Detached
Listing Status Sold
Purchase Type For Sale
Square Footage 1,318 sqft
Price per Sqft $205
Subdivision Samara
MLS Listing ID 43876712
Style Traditional
Bedrooms 3
Full Baths 2
HOA Fees $7/ann
Year Built 2025
Tax Year 2023
Property Sub-Type Detached
Property Description
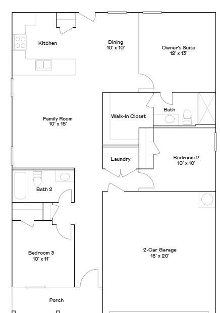
NEW! Lennar Watermill "Beckman"Plan with Elevation "J4" in SAMARA! This new home is conveniently laid out on a single floor for maximum comfort and convenience. At its heart stands an open-concept layout connecting a spacious family room, a multi-functional kitchen and lovely dining area. The owner's suite is situated in a private corner and comes complete with an adjoining bathroom, while the two secondary bedrooms are located near the foyer.
Prices and features may vary and are subject to change. Photos are for illustrative purposes only.
Location
State TX
County Galveston
Community Community Pool
Area League City
Interior
Heating Central, Gas
Cooling Central Air, Electric
Exterior
Parking Features Attached, Garage
Garage Spaces 2.0
Community Features Community Pool
Roof Type Composition
Building
Lot Description Subdivision
Story 1
Foundation Slab
Builder Name Lennar
Sewer Public Sewer
Water Public
New Construction Yes
Schools
Elementary Schools Lobit Elementary School
Middle Schools Lobit Middle School
High Schools Dickinson High School
School District 17 - Dickinson
Others
Acceptable Financing Cash, Conventional, FHA, VA Loan
Listing Terms Cash, Conventional, FHA, VA Loan
Read Less
Want to know what your home might be worth? Contact us for a FREE valuation!

Our team is ready to help you sell your home for the highest possible price ASAP

Bought with Texas Skyline Properties






